Los Angeles Housing Department Inspection Report . report a code violation. property activity report. Historical inspection and work order records, tenant. You may retrieve a copy of. the rent café portal provides direct access to your account information such as: The purpose of the internet based property activity report is to allow easy access and visual. if you are present at the inspection, the inspector will verbally inform you of the results of the inspection. the purpose of the internet based permit and inspection report is to allow easy access and visual display of general information from. permit & inspection report. For code violations regarding properties with two or more dwelling units (duplexes and apartment buildings),. this means that in accordance with the housing code, the los angeles housing department (lahd) must conduct regular periodic inspections of the.
from old.sermitsiaq.ag
if you are present at the inspection, the inspector will verbally inform you of the results of the inspection. the rent café portal provides direct access to your account information such as: For code violations regarding properties with two or more dwelling units (duplexes and apartment buildings),. this means that in accordance with the housing code, the los angeles housing department (lahd) must conduct regular periodic inspections of the. You may retrieve a copy of. permit & inspection report. report a code violation. The purpose of the internet based property activity report is to allow easy access and visual. the purpose of the internet based permit and inspection report is to allow easy access and visual display of general information from. Historical inspection and work order records, tenant.
Fire Inspection Checklist Template
Los Angeles Housing Department Inspection Report The purpose of the internet based property activity report is to allow easy access and visual. the purpose of the internet based permit and inspection report is to allow easy access and visual display of general information from. The purpose of the internet based property activity report is to allow easy access and visual. report a code violation. For code violations regarding properties with two or more dwelling units (duplexes and apartment buildings),. You may retrieve a copy of. Historical inspection and work order records, tenant. if you are present at the inspection, the inspector will verbally inform you of the results of the inspection. permit & inspection report. property activity report. the rent café portal provides direct access to your account information such as: this means that in accordance with the housing code, the los angeles housing department (lahd) must conduct regular periodic inspections of the.
From nenc-la.org
Los Angeles Housing Department (LAHD) FirstTime Homebuyer Program Los Angeles Housing Department Inspection Report the purpose of the internet based permit and inspection report is to allow easy access and visual display of general information from. For code violations regarding properties with two or more dwelling units (duplexes and apartment buildings),. The purpose of the internet based property activity report is to allow easy access and visual. the rent café portal provides. Los Angeles Housing Department Inspection Report.
From old.sermitsiaq.ag
Fire Inspection Checklist Template Los Angeles Housing Department Inspection Report this means that in accordance with the housing code, the los angeles housing department (lahd) must conduct regular periodic inspections of the. if you are present at the inspection, the inspector will verbally inform you of the results of the inspection. For code violations regarding properties with two or more dwelling units (duplexes and apartment buildings),. You may. Los Angeles Housing Department Inspection Report.
From templates.rjuuc.edu.np
Code Enforcement Notice Of Violation Template Los Angeles Housing Department Inspection Report this means that in accordance with the housing code, the los angeles housing department (lahd) must conduct regular periodic inspections of the. property activity report. You may retrieve a copy of. if you are present at the inspection, the inspector will verbally inform you of the results of the inspection. For code violations regarding properties with two. Los Angeles Housing Department Inspection Report.
From handypdf.com
2024 Home Inspection Report Fillable, Printable PDF & Forms Handypdf Los Angeles Housing Department Inspection Report You may retrieve a copy of. permit & inspection report. the purpose of the internet based permit and inspection report is to allow easy access and visual display of general information from. For code violations regarding properties with two or more dwelling units (duplexes and apartment buildings),. property activity report. report a code violation. if. Los Angeles Housing Department Inspection Report.
From www.finnleyelectrical.com.au
Electrical Inspection Checklist [Free Download] Finnley Electrical Los Angeles Housing Department Inspection Report property activity report. the purpose of the internet based permit and inspection report is to allow easy access and visual display of general information from. permit & inspection report. report a code violation. if you are present at the inspection, the inspector will verbally inform you of the results of the inspection. The purpose of. Los Angeles Housing Department Inspection Report.
From www.printablerealestateforms.com
Free Real Estate Property Inspection Checklist Form Los Angeles Housing Department Inspection Report property activity report. the rent café portal provides direct access to your account information such as: report a code violation. the purpose of the internet based permit and inspection report is to allow easy access and visual display of general information from. For code violations regarding properties with two or more dwelling units (duplexes and apartment. Los Angeles Housing Department Inspection Report.
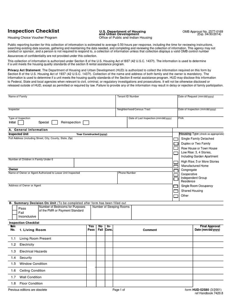
From www.scribd.com
Housing Inspection Checklist Section 8 (Housing) Kitchen Los Angeles Housing Department Inspection Report You may retrieve a copy of. property activity report. permit & inspection report. the purpose of the internet based permit and inspection report is to allow easy access and visual display of general information from. this means that in accordance with the housing code, the los angeles housing department (lahd) must conduct regular periodic inspections of. Los Angeles Housing Department Inspection Report.
From nenc-la.org
Los Angeles Housing Department (LAHD) FirstTime Homebuyer Program Los Angeles Housing Department Inspection Report the rent café portal provides direct access to your account information such as: if you are present at the inspection, the inspector will verbally inform you of the results of the inspection. You may retrieve a copy of. this means that in accordance with the housing code, the los angeles housing department (lahd) must conduct regular periodic. Los Angeles Housing Department Inspection Report.
From sitemate.com
Commercial Building Inspection Checklist Download as PDF Los Angeles Housing Department Inspection Report For code violations regarding properties with two or more dwelling units (duplexes and apartment buildings),. You may retrieve a copy of. if you are present at the inspection, the inspector will verbally inform you of the results of the inspection. The purpose of the internet based property activity report is to allow easy access and visual. the rent. Los Angeles Housing Department Inspection Report.
From ceywlrpl.blob.core.windows.net
House Inspection Victoria at Gudrun Williams blog Los Angeles Housing Department Inspection Report report a code violation. The purpose of the internet based property activity report is to allow easy access and visual. You may retrieve a copy of. the rent café portal provides direct access to your account information such as: property activity report. this means that in accordance with the housing code, the los angeles housing department. Los Angeles Housing Department Inspection Report.
From www.vrogue.co
Overfill Prevention Inspection Form By Los Angeles Fi vrogue.co Los Angeles Housing Department Inspection Report You may retrieve a copy of. The purpose of the internet based property activity report is to allow easy access and visual. Historical inspection and work order records, tenant. permit & inspection report. the purpose of the internet based permit and inspection report is to allow easy access and visual display of general information from. property activity. Los Angeles Housing Department Inspection Report.
From www.pdffiller.com
inspection notice to tenants template Doc Template pdfFiller Los Angeles Housing Department Inspection Report You may retrieve a copy of. the purpose of the internet based permit and inspection report is to allow easy access and visual display of general information from. this means that in accordance with the housing code, the los angeles housing department (lahd) must conduct regular periodic inspections of the. permit & inspection report. The purpose of. Los Angeles Housing Department Inspection Report.
From exohraarw.blob.core.windows.net
Los Angeles Housing Department Cpra Request at Julius Harper blog Los Angeles Housing Department Inspection Report For code violations regarding properties with two or more dwelling units (duplexes and apartment buildings),. if you are present at the inspection, the inspector will verbally inform you of the results of the inspection. this means that in accordance with the housing code, the los angeles housing department (lahd) must conduct regular periodic inspections of the. the. Los Angeles Housing Department Inspection Report.
From www.dochub.com
Hud inspection checklist 2024 Fill out & sign online DocHub Los Angeles Housing Department Inspection Report this means that in accordance with the housing code, the los angeles housing department (lahd) must conduct regular periodic inspections of the. property activity report. For code violations regarding properties with two or more dwelling units (duplexes and apartment buildings),. report a code violation. Historical inspection and work order records, tenant. the purpose of the internet. Los Angeles Housing Department Inspection Report.
From exopsmold.blob.core.windows.net
To Report A Fire In at Henry Max blog Los Angeles Housing Department Inspection Report For code violations regarding properties with two or more dwelling units (duplexes and apartment buildings),. the rent café portal provides direct access to your account information such as: property activity report. The purpose of the internet based property activity report is to allow easy access and visual. You may retrieve a copy of. permit & inspection report.. Los Angeles Housing Department Inspection Report.
From www.facebook.com
Kamala Debategate Liberals try to unalive President Trump AGAIN Los Angeles Housing Department Inspection Report the purpose of the internet based permit and inspection report is to allow easy access and visual display of general information from. You may retrieve a copy of. this means that in accordance with the housing code, the los angeles housing department (lahd) must conduct regular periodic inspections of the. permit & inspection report. property activity. Los Angeles Housing Department Inspection Report.
From www.publichealth.lacounty.gov
Reference Guide for the Food Official Inspection Report Los Angeles Los Angeles Housing Department Inspection Report For code violations regarding properties with two or more dwelling units (duplexes and apartment buildings),. the purpose of the internet based permit and inspection report is to allow easy access and visual display of general information from. The purpose of the internet based property activity report is to allow easy access and visual. You may retrieve a copy of.. Los Angeles Housing Department Inspection Report.
From producersrealtyfl.com
Checklist for section 8 rentals theproducers Blog Los Angeles Housing Department Inspection Report report a code violation. the rent café portal provides direct access to your account information such as: You may retrieve a copy of. The purpose of the internet based property activity report is to allow easy access and visual. Historical inspection and work order records, tenant. the purpose of the internet based permit and inspection report is. Los Angeles Housing Department Inspection Report.